5
4
3253
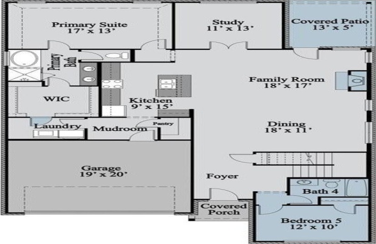
Property Description: MLS# -96.53645988 - Built by UnionMain Homes - Jun 2026 completion! ~ Discover this impressive 5 bedroom, 4 bathroom single family residence in the desirable Milrany Ranch subdivision. Spanning 3,253 square feet and built in 2026, this traditional home features a spacious layout with two living areas, a cozy fireplace in the living room, and a dedicated dining area. The interior showcases cable TV availability, decorative lighting, and high-speed internet access. Enjoy the convenience of central heating and cooling, complemented by ENERGY STAR equipment. The beautifully landscaped lot offers a large backyard, perfect for outdoor activities. A covered patio provides an ideal space for relaxation. The home includes a two-car garage and is located within the acclaimed Melissa ISD, serving Sumeer Elementary, Melissa Middle, and Melissa High Schools. Estimated completion is set for June 30, 2026. This residence combines modern comfort with a family-friendly environment.