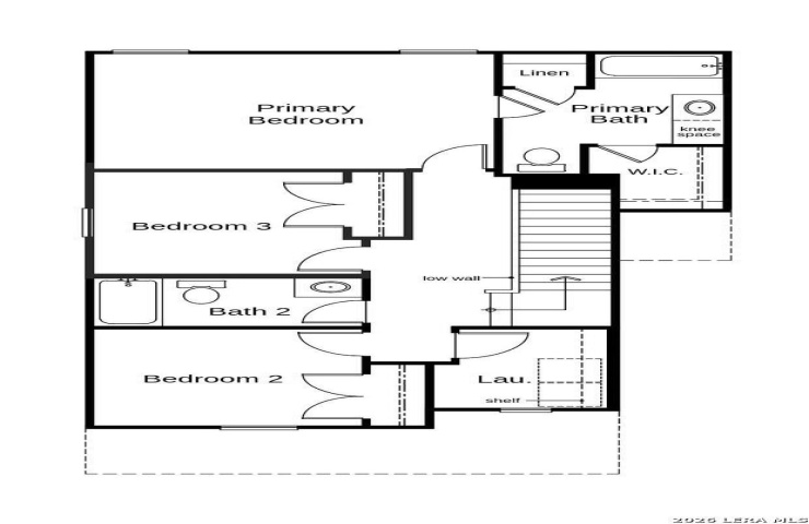
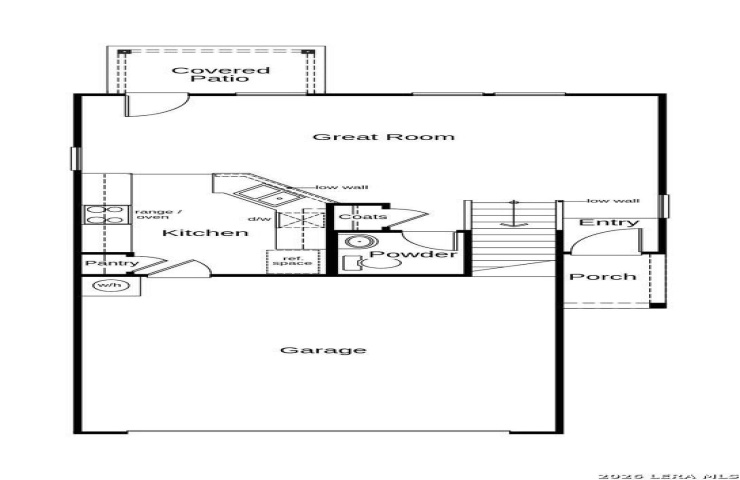
Property Description: This charming home features an open floor plan that creates a seamless flow for everyday living and entertaining. The kitchen is equipped with Whirlpool stainless steel appliances, Woodmont Belmont 42-in. upper cabinets, a Daltile tile backsplash, and an extended breakfast bar for added convenience. The primary bath offers an extended cabinet with knee space and a 42-in. garden tub/shower with Daltile tile surround. Decorative touches include a Carrara-style entry door, Kwikset Polo hardware, Shaw carpet in bedrooms, and durable vinyl plank flooring throughout main areas. Step outside to enjoy a relaxing covered patio, perfect for outdoor gatherings.