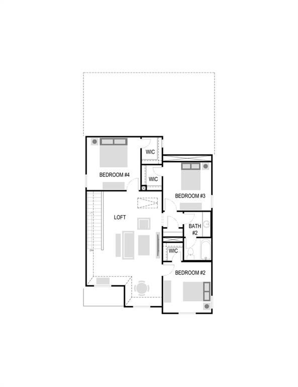
Property Description: MLS# 21216436 - Built by Trophy Signature Homes - Jun 2026 completion! ~ The Mesquite floor plan provides a practical and balanced layout, perfect for modern living. As you enter through the inviting foyer, the open kitchen offers ample space for casual meals or hosting guests. The connected dining and family rooms create a seamless flow, making it easy to unwind after a busy day or enjoy a cozy movie night. With bedrooms upstairs, including a thoughtfully designed primary suite with a walk-in closet and ensuite bath, this plan delivers comfort without excess. The upstairs loft adds a flexible space for hobbies or study, making the Mesquite an adaptable home for a variety of lifestyles.