3
2
1898
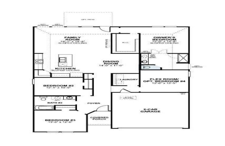
Property Description: Built by M-I Homes. Discover this stunning new construction home at 2404 Tarrango Trail in Mesquite, TX, featuring a layout that prioritizes natural light and effortless movement throughout the interior. Key Features: • 3 spacious bedrooms with owner’s suite in its own private corner • 2 full bathrooms featuring quality fixtures and finishes • Open-concept floorplan connecting living areas seamlessly • Fresh construction showcasing quality craftsmanship and attention to detail Neighborhood & Location Benefits: • Situated in a thoughtfully planned Mesquite environment ideal for families and individuals • Excellent proximity to local parks and outdoor green spaces • Convenient access to recreational opportunities just minutes from your door The central living area serves as the heart of the home, fostering a connected environment where common rooms flow together naturally. The owner’s suite in its own private corner ensures a quiet retreat, while the two additional bedrooms and flex room offer flexibility for guests, family, or a dedicated home office. With its functional floorplan and modern building standards, this new construction home delivers a comfortable environment that maximizes every square foot for contemporary living. Schedule your visit today!