3
2
1699
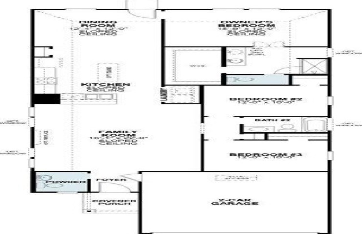
Property Description: Built by M-I Homes. Discover this stunning new construction home at 2017 Paradise Valley Drive in Mesquite, TX, featuring a layout that prioritizes natural light and effortless movement throughout the interior. Key Features: • 3 spacious bedrooms with owner’s suite in its own private corner • 2.5 bathrooms featuring quality fixtures and finishes • Open-concept living space perfect for entertaining and daily life • Fresh construction showcasing exceptional craftsmanship and modern design Neighborhood & Location Benefits: • Situated in a desirable Mesquite neighborhood offering suburban tranquility • Proximity to beautiful parks perfect for outdoor activities and recreation • Established neighborhood setting with easy access to local amenities The central living area serves as the heart of the home, fostering a connected environment where common rooms flow together naturally. The owner’s suite in its own private corner ensures a quiet retreat, while the two additional bedrooms offer flexibility for guests, family, or a dedicated home office. With its functional floorplan and modern building standards, this new construction home delivers a comfortable environment that maximizes every square foot for contemporary living. Schedule your visit today!