4
3
3124
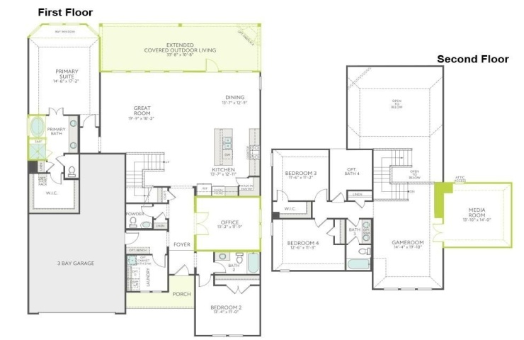
Property Description: MLS# 21217972 - Built by Tri Pointe Homes - Ready Now! ~ The Ethan offers spacious living with 4 bedrooms, 3.5 baths, and a luxury kitchen perfect for everyday life. Enjoy a primary suite with tub and bay window, a media room, office, open rails, 8' doors, and an extended covered patio with gas to the patio for seamless indoor-outdoor living.