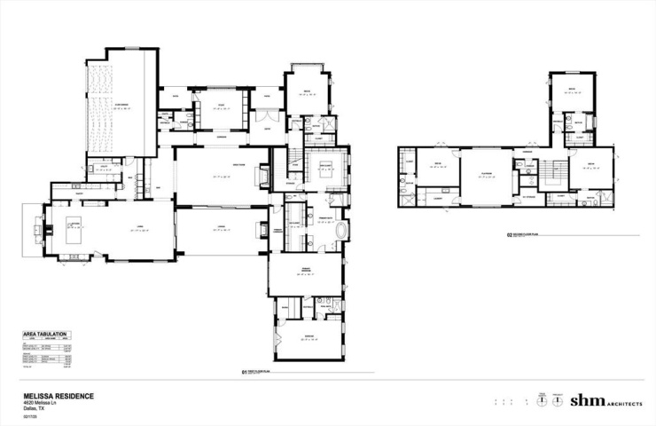
Property Description: Currently under construction by premier builder Danes Custom Homes, 4620 Melissa Lane is a thoughtfully designed estate that blends timeless architecture w modern luxury. Collaboration w Enrique Montenegro of SHM Architects & Erin Sander Design, the residence reflects a refined aesthetic w exceptional attention to detail. Spanning 7,888 SF on a .53-acre lot (125 x 175) the home offers 5 bedrms, 6 full baths & 2 half baths, incl a downstairs primary suite & guest suite. The floor plan is designed for both everyday living & entertaining with generous living spaces, a dedicated study, playroom & seamless transitions btwn indoor & outdoor environments. The exterior showcases a sophisticated combination of Old Texas Brick & limestone, accented by a standing seam metal roof, custom gas lanterns & clean-lined architecture. Oversized windows provide abundant natural light, while expansive La Cantina sliding doors create a true indoor-outdoor experience opening the great rm, kitchen & bfast area to the covered loggia w Infratech heaters, overlooking the pool, spa & landscaped yard. Inside, elevated finishes define every space, incl wide-plank white oak floors, custom cabinetry, & culinary kitchen equipped w Sub-Zero, Wolf, & Miele appl. Luxurious plumbing fixtures by Watermark, Waterstone, Rohl, Toto & Franke further enhance home’s curated design. Primary suite offers serene retreat w 2 boutique-style closets & a spa-inspired bath. Designed w wellness & comfort in mind, home feat dedicated space for rejuvenation w fitness room, sauna & pool bath w walk-in shower. Modern conveniences incl 2 Isokern FP, pre-wiring for surround sound, security w cameras (Cat 5 & 6) & motorized shades. Addl' highlights incl a 3-car garage w epoxy flooring, integrated exterior lighting, extensive landscaping & abundant storage. Exceptional new construction offers rare opportunity to own a meticulously crafted, design-forward home in one of Dallas’ most sought-after neighborhoods.