4
3
3352
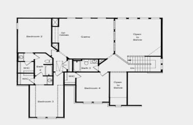
Property Description: What's Special: Close to Amenities - South Facing Lot - North Facing Patio - Game Room. New Construction - March Completion! Built by Taylor Morrison, America's Most Trusted Homebuilder. Welcome to the Peridot at 1712 Camelia Avenue in The Ridge at Northlake. The Peridot invites you in with a private study and a spacious formal dining room just off the foyer, offering an easy walk through to the kitchen. The open layout features a gourmet kitchen that overlooks the large great room, with an island that makes entertaining feel effortless. A covered patio extends the living space outdoors for relaxed gatherings. This thoughtful plan includes an oversized laundry room and a convenient half bath nearby for everyday ease. The first-floor primary suite feels restful and spacious, complete with a beautiful bathroom and a generous walk-in closet. Upstairs, all secondary bedrooms surround the cheerful game room and share two full bathrooms, creating a comfortable and balanced living space for everyone. Feel at home at The Ridge at Northlake 50s, where top-tier amenities and a welcoming vibe shine. Kids can enjoy the Adventure Park and outdoor ninja course, while the resort-style pool, splash park, and lap pool offer fun for all. Stay active at the fitness center, meet neighbors at community hangouts, and enjoy zoning to top-rated Argyle ISD. Additional Highlights Include: Covered outdoor living. Photos are for representative purposes only. MLS#21219887