5
3
3154
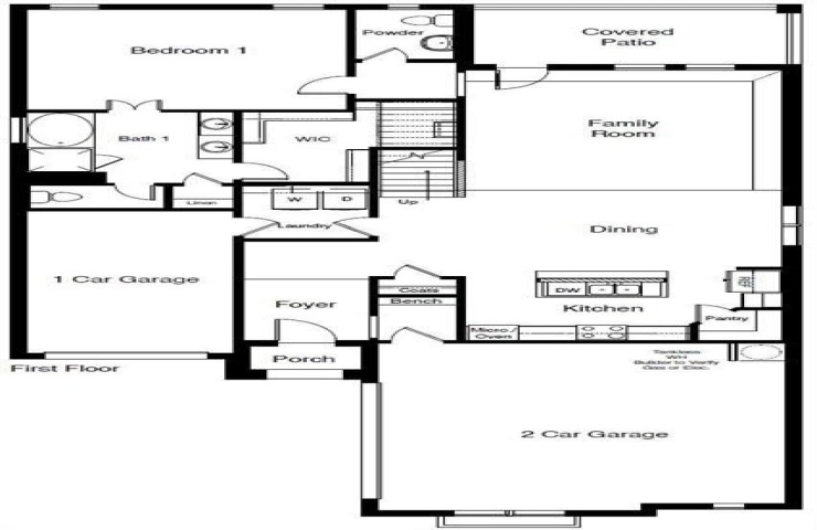
Property Description: Stunning new D.R. Horton home in the brand-new Eden Ranch community located in South Arlington and Kennedale ISD! Estimated summer completion. The Yorktown floorplan, elevation X , offers a spacious two-story layout with 5 bedrooms, 3.5 bathrooms, a game room, and a split 3-car garage with separate single and double bays, ideal for added storage or multiple vehicles. The open-concept design features a generous family room that flows into the dining area and modern kitchen, creating an inviting space for everyday living and entertaining. The kitchen includes 42” upper cabinets with crown molding, cabinet hardware, soft-close drawers and cabinets, quartz countertops, a ceramic tile backsplash, stainless steel appliances, a gas range, and a pantry for added storage. RevWood flooring extends throughout the main living areas for durability and style, and a convenient mud bench area adds everyday functionality. The private primary suite is located on the first floor and features an ensuite bath with dual sinks, a separate soaking tub and walk-in shower, and a spacious walk-in closet. Four additional bedrooms are located on the second level along with a large game room, providing flexible space for family, guests, or hobbies. A covered patio enhances outdoor living, while modern finishes, energy-efficient construction, and America’s Smart Home Technology package add everyday convenience. Exterior features include a landscaping package with a full sprinkler system and a fully fenced backyard. With its large homesites, attractive home designs, and convenient access to shopping, dining, and major highways, Eden Ranch offers a comfortable lifestyle in a desirable part of the Mid-Cities area. Residents also benefit from an easy commute, with the airport approximately 20–25 minutes away, making travel and business trips simple and convenient. Eden Ranch combines suburban tranquility with everyday accessibility, making it an appealing place to call home.