3
2
1891
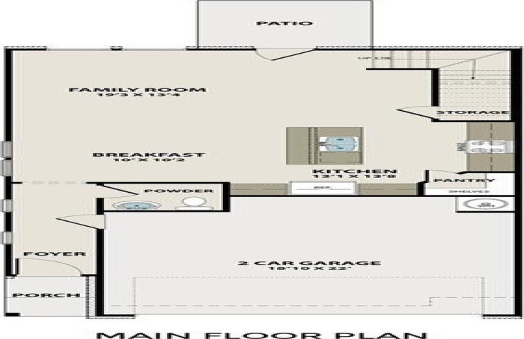
Property Description: MLS# 21222656 - Built by Davidson Homes - Aug 2026 completion! ~ Welcome to The Durham at Lake Park Villas! This stunning 3-bedroom, 2.5-bathroom end-unit townhome offers 1,891 sqft of modern living space. Step through the foyer into a bright, open layout where a spacious living room, dining area, and chef-inspired kitchen with a center island await. Natural light floods the space, creating an inviting atmosphere for both entertainment and relaxation. Upstairs, the Primary Suite features two closets and a luxurious bath with a double vanity. Two additional bedrooms, a full bath, and a convenient laundry room complete the second level. Noteworthy upgrades include white painted cabinets, tiled showers, soft-close cabinets, quartz countertops, and black hardware throughout. Enjoy the outdoors on your covered patio or explore the community playground. Benefit from being in the Rockwall ISD with no MUD or PID tax. This home also includes a two-car garage for added convenience. Schedule your visit today to see your future home! Attached photos are representative of the floor plan and may vary from constructed property. Standard features and options also vary, please see the community's New Home Consultant for details.