5
3
2594
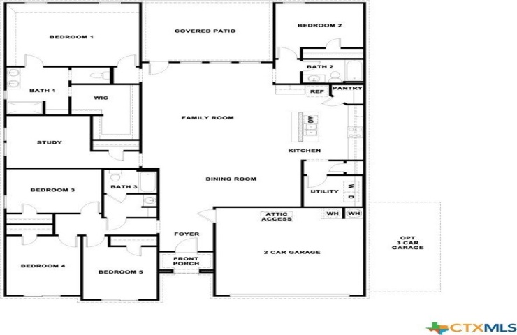
Property Description: MAY ESTIMATED COMPLETION. The Irving is one of our most popular floorplans at Hartland Ranch. This one-story home includes 5 bedrooms, 3 bathrooms, and a study within 2,592 square feet of living space and a 3-car garage. As you enter the home from the covered front porch, you'll cross the foyer to the dining room, family room and kitchen. This large open concept space is perfect for entertaining and everyday living. The kitchen includes an island with undermount sink, quartz countertops, decorative tile backsplash, a corner pantry closet, stainless-steel appliances and 36 upper cabinets. The utility room with an extra closet is located just off the kitchen. Check out the primary bedroom, located at the back of the home. This oversized bedroom will become your oasis at the end of the day. Enjoy the 5' walk in shower, raised cultured marble vanity with double sinks and toilet area with a separate door. A walk-in closet with generous shelving is connected to the bathroom. In the opposite rear corner of the home, you'll find Bedroom 2 and Bath 2. This private space could be perfect for your guests or any family member that needs their own space. At the front of the home, you'll find the additional 3 bedrooms and Bath 3. Each secondary bedroom includes a closet with shelving, and the secondary bathrooms include a shower/tub combination and shelving for extra storage or decor. The study is off the family room and features a closet as well. With all the space the Irving offers, your family is sure to love this plan. The Irving includes vinyl flooring throughout the common areas of the home and the primary bedroom, and carpet in the secondary bedrooms. All our new homes feature a covered back patio, full sod, an irrigation system in the front and back yard, and full gutters. This home features our America's Smart Home base package, which includes the Video Front Doorbell, Front Door Deadbolt Lock, Home Hub, Thermostat, and a Smart Switch.