4
2
2913
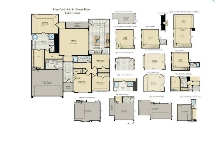
Property Description: MLS# 21224071 - Built by J Houston Homes - Apr 2026 completion! ~ NEW JOHN HOUSTON HOME IN HAYES CROSSING IN MIDLOTHIAN ISD! This beautiful smart home features 4 bedroom, 2.5 bath, game room, and media room that offers comfort and convenience. As you step inside, you're greeted by a cozy wood-burning fireplace and three large windows, making the living room feel spacious and inviting. The kitchen features a 36 electric cooktop, cabinets to the ceiling for extra storage, undercabinet lighting, a wood-wrapped island, and a trash rollout. The primary suite is a true retreat, with its generous bedroom layout, dual vanity with a luxury shower. READY IN MID APRIL 2026!