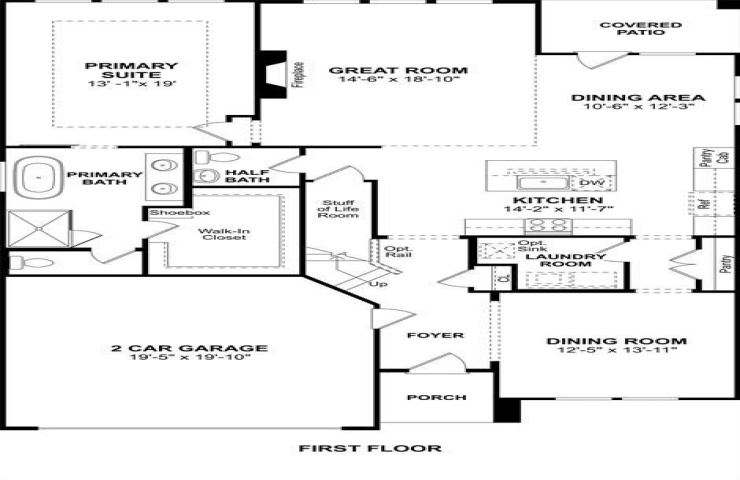
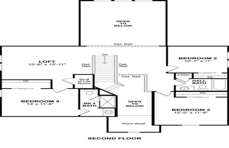
Property Description: Stunning 2-story open concept home showcasing the latest design features. The expansive open living area is perfect for entertaining guests with high ceilings and abundant natural light pouring in from the large windows. The kitchen showcases a large island, chestnut brown cabinets, and quartz countertops. The primary suite is tucked away at the back of the home, giving you the privacy you need. Plus, your ensuite bathroom is a dream, with a spacious walk-in shower, a dual-sink vanity, and a large shower. Three additional bedrooms with 2 full baths, as well a loft are located upstairs. Schedule your visit today!