4
3
2704
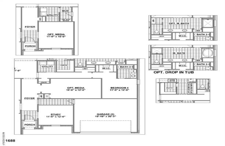
Property Description: This charming Craftsman-style home, located in the Wellington subdivision, sits on a gorgeous home site! This one story dream home features four spacious bedrooms and three bathrooms. The primary suite has double vanities, a generous walk-in closet and both a shower and luxurious drop-in soaker tub. The open floor plan seamlessly connects the family room to the kitchen and dining area, creating an ideal space for entertaining. The family room also opens up to a back patio perfect for indoor-outdoor living. Additional highlights include an upgraded kitchen with prime appliances and hardwood flooring. The spacious media room provides space for family fun and the study is helpful for remote working. Residents of the Wellington subdivision enjoy access to two pools, walking trails, parks, playgrounds and pavilions with grilling areas. The location is convenient to DFW Airport, shopping, dining and highly rated Northwest ISD schools. This home truly combines comfort, convenience and space for enjoyment for the whole family. American Legend associates are available seven days a week to provide information about this home and possible incentives for purchase. Available July 2026.