4
3
3026
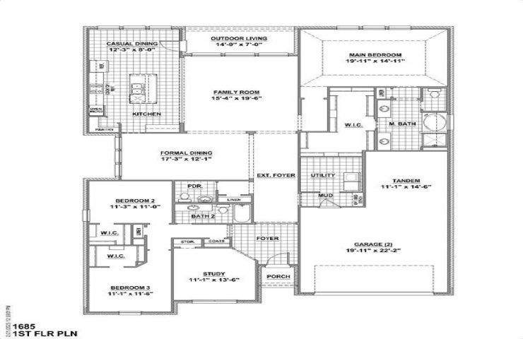
Property Description: Spacious 1-story, 4 bedroom, 3.5 bathroom design with a study also features 2 dining areas and a 2.5-car garage! A study greets you as you enter the home that is perfect for an exercise room or home office. A private hallway leads to two secondary bedrooms with walk-in closets and a shared full-size bathroom. Just past the formal dining area, the family room opens to the kitchen and casual dining area and features gorgeous views of the outdoor living space. Enjoy home cooked meals in the gourmet kitchen complete with a center island, ample counter space, a corner pantry and easy access to the formal dining room. Situated at the back of the home for maximum privacy, the main bedroom retreat boasts an oversized walk-in closet and the perfect en-suite bathroom complete with dual vanities, a walk-in shower and soaking tub. This design also showcases cathedral ceilings throughout the home.