3
2
1650
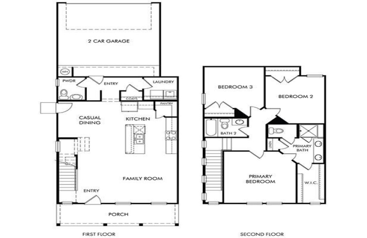
Property Description: BRAND NEW energy - efficient home May 2026! Take advantage of the spacious covered front porch or invite guests in to a bright, open concept living space. White cabinets with veined white quartz countertops, light tan EVP flooring with light taupe carpet. New energy-efficient move-in ready homes in Dallas-Fort Worth include a washer, dryer, fridge, and whole home blinds, plus they can be closing-ready in 60 days or less–guaranteed. Enjoy a low maintenance lifestyle at Oak Ridge Park and experience amenities including a playground, greenspace, and trails, all with easy access to Corinth, Argyle, Flower Mound and Denton.