5
3
2791
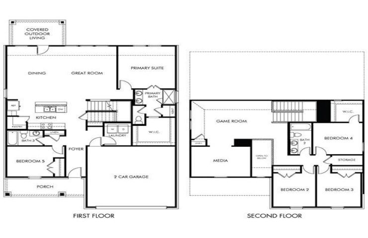
Property Description: BRAND NEW energy - efficient home Jun 2026! Turn the kids loose in the Royal’s second-story media and game rooms while you entertain in the open concept great room. White cabinets with veined white quartz countertops, tan tone EVP flooring with gray beige tweed carpet. Spend the weekends debating what activity to do in this amenity-filled community, make a splash in the resort-style pool, pick up a game of basketball, or let the kids loose on the playground. With quick access to US 380, residents will enjoy the benefits of a short commute to downtown McKinney, Frisco, or Richardson to enjoy nearby shopping and entertainment. Each of our homes is built with innovative, energy-efficient features designed to help you enjoy more savings, better health, real comfort and peace of mind