4
4
3896
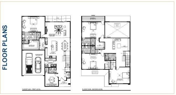
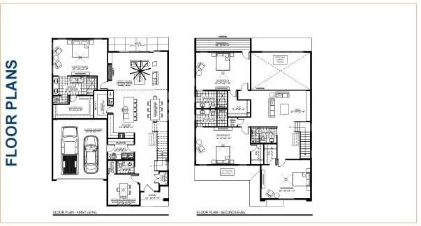
Property Description: Irving Valley Ranch’s best & last location for brand new construction. Modern designs. Mediterranean styles. Fantastic location. Stunning 14 floorplans to choose from 30 custom lot sizes. Impressive front elevations, elegant architectural designed floorplans come with 2 stories or 3 stories, hi-end finishes, Viking appliances, balconies, or terraces available per plans. Irving Las Colinas prime location. Easy access to shops, restaurants, Lifetime Fitness, multiple golf courses, Coming soon HEB, DFW airport… Note: The list price is for the construction of the house only. The lot price purchase will be separate. Buyer will need to select a lot & a house plan to build on. There will be two contracts (one for the lot and one for the house) to be signed before construction begins.