4
3
2838
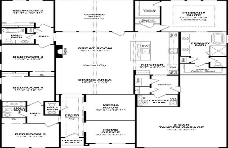
Property Description: Spacious, sophisticated and modern, the Geneva will rock your world. The open layout hosts a massive great room with a warming fireplace, a lovely kitchen with large island and walk-in pantry, and ample room for dining. Never run out of storage space in the primary suite with two walk-in closets available! When it's time to get some work done, there will be no interruptions as the office is located off the foyer and comes with double barn doors. Host epic movie nights in the media room! This home is a host's dream come true!