3
2
2018
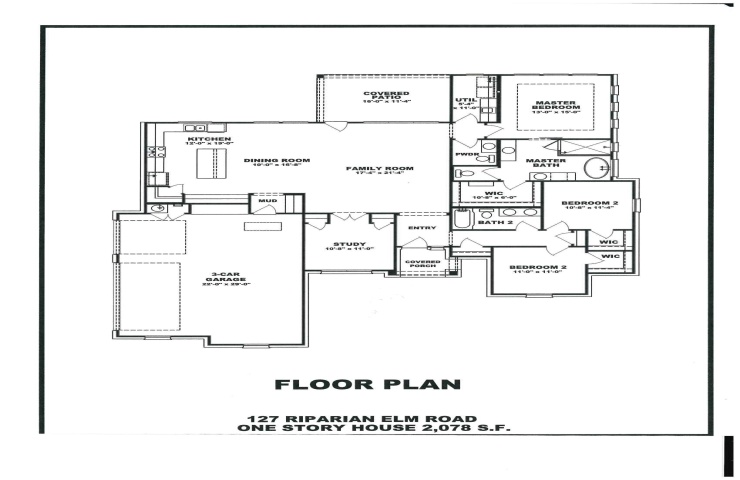
Property Description: New home on 3.272 acres in growing area of Bertram. Home features 3 bedrooms 2 baths office /study and an oversized 3 car garage. Large open concept living/dining/kitchen area with huge island kitchen.