4
2
1916
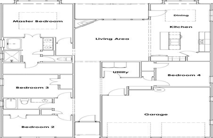
Property Description: Beautiful NEW CUSTOM Craftsman 1 STORY just blocks from Lakeview Marina on Lake Lewisville. High Efficiency 100% FOAM INSULATED! Open plan with High Ceilings, Elegant Kitchen with Huge Island, Tiled Backsplash, Upgraded 42 inch Bead Board Cabinets, Stainless Appliances & Granite counters. Large family room with corner fireplace, RECLAIMED TIMBER mantel & ceiling accents, crown moulding, numerous windows highlight backyard with covered patio & wood fence. Master suite has private bath with large walk in tiled shower, Separate FREESTANDING TUB with beadboard wainscoting and dual sinks; split bedrooms for privacy! GARAGE OVER-SIZED. NO HOA! *FRONT ELEVATION DETAIL SUBJECT TO CHANGE.* Home is under construction, estimated completion July-August 2026.