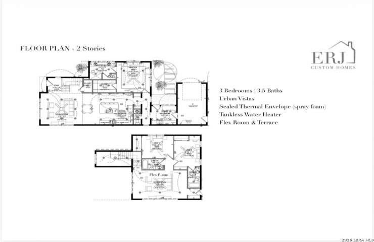
Property Description: Welcome to your dream home in the heart of Denver Heights, where modern design meets luxury living! Thoughtfully crafted with high-end finishes throughout, this stunning home offers both style and functionality at every turn. Step inside to soaring 10-foot ceilings and Belle Luxe waterproof wood flooring that seamlessly combines elegance and durability. The sleek metal railing and statement staircase create a striking first impression, while low-E casement windows flood the home with natural light and enhance energy efficiency. Built with foam insulation and 2x6 exterior walls, this home provides superior comfort, soundproofing, and year-round efficiency. Designed for both entertaining and everyday living, the inviting living area features a built-in TV space with wide-plank shiplap, creating the perfect ambiance for relaxing or hosting guests. The gourmet kitchen is a true showstopper, complete with a large island with bar seating, quartz countertops, and custom cabinetry with soft-close hinges and a spice rack. Enjoy top-of-the-line Energy Star appliances, including a gas cooktop, built-in oven and microwave, and a Smart French Door refrigerator. The downstairs primary suite offers a private retreat with a spacious walk-in closet and built-in shelving. The spa-like primary bath features a double vanity with over-mount sinks and abundant storage. Upstairs, you'll find a generous game room with a shared bath, ideal for entertaining or relaxing, along with additional bedrooms that provide ample space for family or guests. Functionality continues with an oversized mudroom and laundry combo, complete with a dog wash station-perfect for pet lovers. The one car garage offers flexibility and can double as a home gym, while the extended driveway provides plenty of parking. Take your living experience to the next level on the rooftop deck with a covered patio, where you can enjoy breathtaking views of the downtown skyline. Outside, new sod and beautifully maintained landscaping complete this picture-perfect property. This exceptional home offers the perfect blend of modern luxury, comfort, and convenience. Don't miss your opportunity to own a standout property in one of San Antonio's most desirable areas. Schedule Your Showing Today!