Builders Clearinghouse

$744,900

1014 Emerald Trace Drive, Justin, TX 76247

Residential
Last update date 2025-10-28 12:03:11
4 Camas
3 Balneario
3,939sqft
  • Build in 2025
  • Área de lote 0.23 Acre
  • Tipo de Propiedad Residential
  • loc
    MLS # 21077433
  • Días en el mercado 23Días
  • Habitaciones 4
  • Baños completos 3
  • Pies Cuadrados 3,939 Sq Ft
Descripción

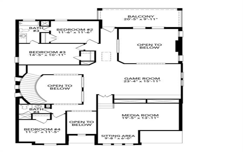
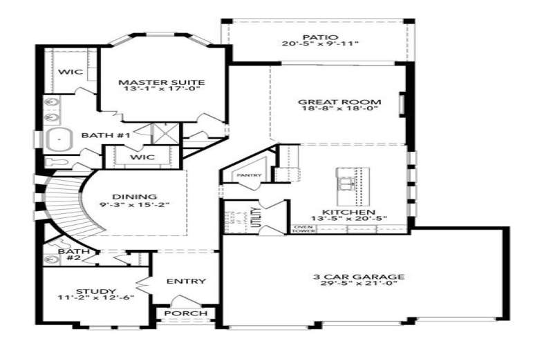
MLS# 21077433 – Built by Sandlin Homes – Nov 2025 completion! ~ This Monte Carlo floor plan offers functionality and luxury with four spacious bedrooms, 3.5 bathrooms, a third-car garage, and a host of premium upgrades. Enjoy the added study, perfect for a home office, a bay window in the primary suite, a wood hood in the kitchen, and a floating bar in the game room – ideal for entertaining. The added 12’ sliding door opens the living area to the patio, perfect for indoor-outdoor gatherings along with the upstairs balcony. Additional highlights include a grand staircase and formal dining area, media room, and ample guest accommodations. This beautifully designed home seamlessly blends dark and light finishes throughout the interior and exterior, creating a sophisticated and cohesive aesthetic. A curated mix of dark grey, black, and white tones flows effortlessly throughout the home, enhancing every space with a modern yet organic touch. The kitchen stuns with a mosaic backsplash featuring round detailing with a soft, natural feel, complemented perfectly by the fireplace tile that mimics the warmth of wood, bringing the outdoors in. Elevated tile work continues in every bathroom, showcasing attention to detail and style.

×

Programe una visita

For further questions, including partnership opportunities, please email
info@questmls.com or contact using our contact form.

Calculadora de hipoteca
Pago mensual: $
This site is registered on wpml.org as a development site. Switch to a production site key to remove this banner.