Builders Clearinghouse

$373,413

1535 Oakdale Drive, Kaufman, TX 75142

Residential
Last update date 2026-02-04 00:03:16
3 Camas
2 Balneario
2,282sqft
  • Build in 2026
  • Área de lote 0.13 Acre
  • Tipo de Propiedad Residential
  • loc
    MLS # 21078151
  • Días en el mercado 121Días
  • Habitaciones 3
  • Baños completos 2
  • Pies Cuadrados 2,282 Sq Ft
Descripción

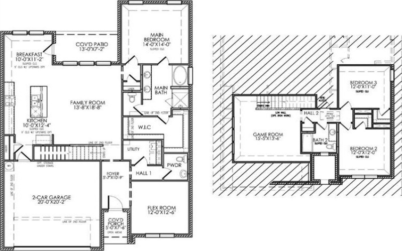
Freeman Farm by Lillian Homes brings new construction homes in Kaufman, TX within reach. Just off US-175, the community puts downtown Dallas roughly 33 miles—or about a 35-minute drive—away, giving you small-town value with big-city access. Spanning 2,273 square feet across two well-planned levels, The Aramis offers an open-concept design perfect for modern living. The main floor features a spacious family room, a chef-inspired kitchen with an island, a flexible bonus space, and the private primary suite, along with a convenient half bath. Upstairs, you’ll find two additional bedrooms, a versatile game room, and plenty of storage. This home also includes luxury vinyl plank flooring, gutters, a two-car garage, and inviting outdoor spaces with both a covered porch and patio. Beyond your doorstep, residents enjoy Kaufman’s revitalized historic square lined with boutiques, cafés, and year-round festivals, while 232-acre Kaufman City Lake Park invites fishing, boating, and hiking only minutes from home. Children attend Kaufman ISD schools, and county growth plus planned highway improvements promise strong upside for early buyers seeking affordable new homes near Dallas.

×
  • 1. 02.06.2026 (Start time: 12:00 PM - End time: 2:00 PM)

Programe una visita

For further questions, including partnership opportunities, please email
info@questmls.com or contact using our contact form.

Calculadora de hipoteca
Pago mensual: $
This site is registered on wpml.org as a development site. Switch to a production site key to remove this banner.