Builders Clearinghouse

$288,490

834 Tiger Lily Way, Pilot Point, TX 76258

Residential
Last update date 2026-01-27 00:03:08
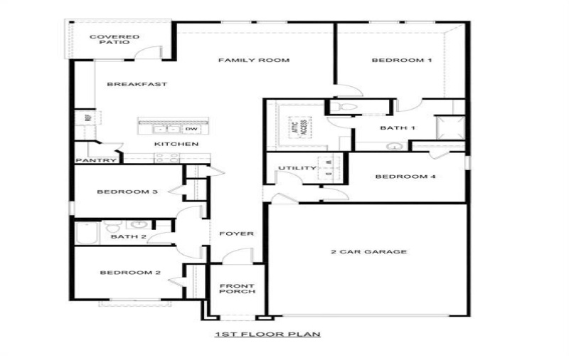
4 Camas
2 Balneario
1,836sqft
  • Build in 2025
  • Área de lote 0.16 Acre
  • Tipo de Propiedad Residential
  • loc
    MLS # 21082523
  • Días en el mercado 106Días
  • Habitaciones 4
  • Baños completos 2
  • Pies Cuadrados 1,836 Sq Ft
Descripción

New construction by D.R. Horton. Our P40I Icarus Plan is in Windrose located within the rapidly growing city of Pilot Point. This is a 1 story 4 bed 2 bath with an open concept floorplan. Home on a large lot will feature waterproof laminate plank flooring, quartz countertops, and stainless steel appliances. Smart home included.

×

Programe una visita

For further questions, including partnership opportunities, please email
info@questmls.com or contact using our contact form.

Calculadora de hipoteca
Pago mensual: $
This site is registered on wpml.org as a development site. Switch to a production site key to remove this banner.