Builders Clearinghouse

$739,900

504-506 Trailhead Lane, Denton, TX 76205

Residential Multi Family
Last update date 2025-10-24 12:03:10
8 Camas
4 Balneario
  • Build in 2025
  • Área de lote 0.19 Acre
  • Tipo de Propiedad Residential Multi Family
  • loc
    MLS # 21095115
  • Días en el mercado 1Día
  • Habitaciones 8
  • Baños completos 4
Descripción

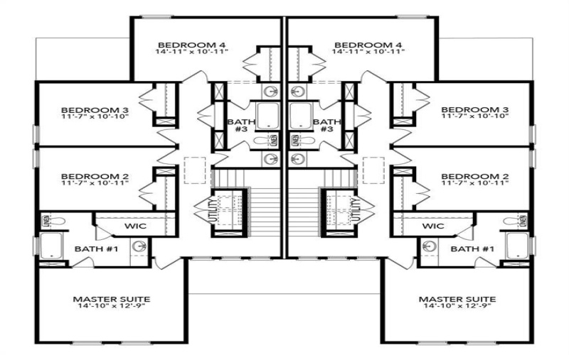
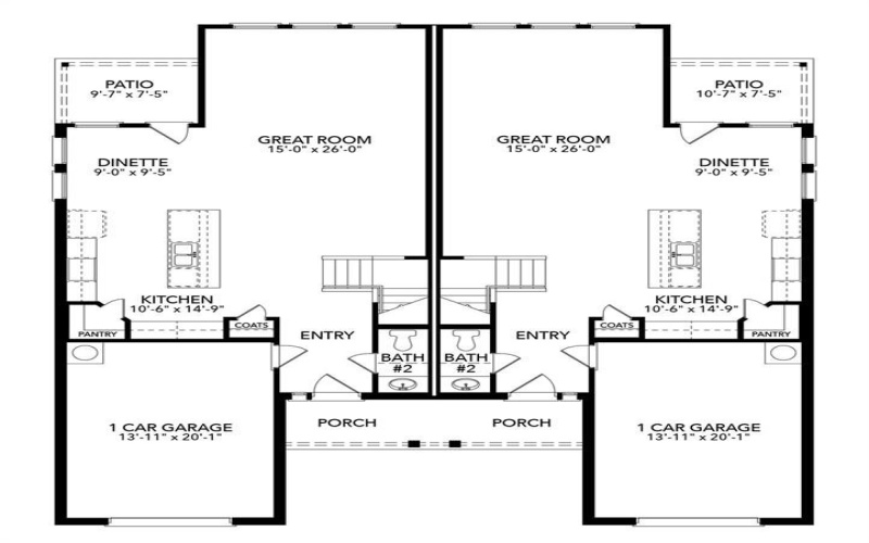
MLS# 21095115 – Built by Sandlin Homes – Apr 2026 completion! ~ Duplex under construction. Total sf. is 4,046sf. Each half is 2,023sf, 4 bed, 2.5 bath, 1 car garage w-private, fenced-in backyard. Taxes of 1.91%, no PID, no MUD. $600 annual HOA. New construction 10-year structural warranty, 2-year, electrical, plumbing warranty. New appliance warranty, 1-year builder warranty. Close to UNT and TWU. 100 retail stores within 5 minutes. 27 miles to DFW airport, 39 miles to DT Dallas, 35 miles to DT Ft. Worth. The Eagle Cove Duplex community is investor friendly.

×

Programe una visita

For further questions, including partnership opportunities, please email
info@questmls.com or contact using our contact form.

Calculadora de hipoteca
Pago mensual: $
This site is registered on wpml.org as a development site. Switch to a production site key to remove this banner.