Builders Clearinghouse

$654,999

529 Limerick, Celina, TX 75009

Residential
Last update date 2025-10-28 12:03:11
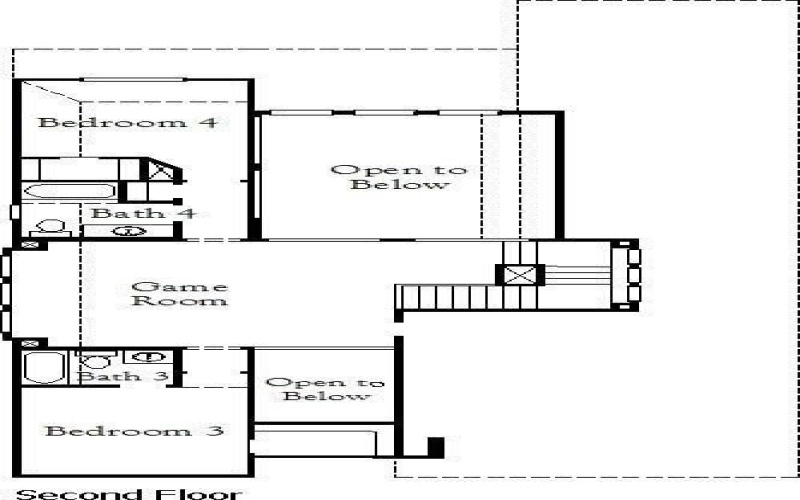
4 Camas
4 Balneario
3,287sqft
  • Build in 2025
  • Área de lote 0.14 Acre
  • Tipo de Propiedad Residential
  • loc
    MLS # 21097567
  • Días en el mercado 1Día
  • Habitaciones 4
  • Baños completos 4
  • Pies Cuadrados 3,287 Sq Ft
Descripción

MLS# 21097567 – Built by Coventry Homes – Const. Completed Oct 27 2025 ~ This beautifully designed home blends modern luxury with everyday comfort! Nestled in the sought after Hillside Village community in Celina, this spacious 4 bed 4.5 bath home offers everything you need for stylish functional living. Step inside to be greeted by soaring high ceilings and an open concept layout, perfect for entertaining or creating cherishing moments. With a gorgeous gourmet kitchen that flows seamlessly into the living and dining areas, creating a warm inviting space. The home also features a study for those who work from home and a media room that makes movie nights come to life! Hillside Village is a beautiful peaceful community with convenient access to shopping, dining, and top-rated schools! Don’t miss the opportunity to make this home yours!!

×

Programe una visita

For further questions, including partnership opportunities, please email
info@questmls.com or contact using our contact form.

Calculadora de hipoteca
Pago mensual: $
This site is registered on wpml.org as a development site. Switch to a production site key to remove this banner.