Builders Clearinghouse

$459,100

2516 Palo Pinto Trail, Celina, TX 75009

Residential
Last update date 2025-10-24 12:03:10
4 Beds
3 Baths
2,981sqft
  • Build in 2025
  • Lot Size 0.11 Acre
  • Property Type Residential
  • loc
    MLS # 21083537
  • Days on Market 12 Days
  • Bedrooms 4
  • Full Baths 3
  • Square Feet 2,981 Sq Ft
Description

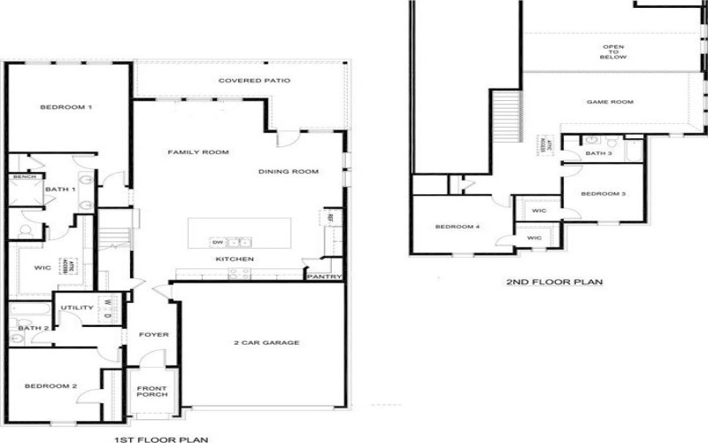
2 Story Open to below, 11′ island in Kitchen, 4 bedroom, primary plus 1 other bedroom down, 3 bath and game room, large covered patio and stainless steel appliances. Lilybrooke at Legacy Hills in Celina, TX. Embrace comfortable living tailored to meet your family’s needs and style. Our homes are crafted with an open layout offering a seamless flow between the living, dining and kitchen areas-perfect for entertaining and family gatherings.

Step inside Lilybrooke at Legacy Hills and take a look around! Note the attention to detail in the open concept areas and cozy bedrooms and modern features.

×

Schedule a Showing

For further questions, including partnership opportunities, please email
info@questmls.com or contact using our contact form.

Mortgage Calculator
Monthly Payment: $
This site is registered on wpml.org as a development site. Switch to a production site key to remove this banner.