Builders Clearinghouse

$403,900

405 Llano Lane, Red Oak, TX 75154

Residential
Last update date 2026-03-21 12:03:11
3 Beds
3 Baths
2,044sqft
  • Build in 2025
  • Lot Size 0.15 Acre
  • Property Type Residential
  • loc
    MLS # 21096143
  • Days on Market 146 Days
  • Bedrooms 3
  • Full Baths 3
  • Square Feet 2,044 Sq Ft
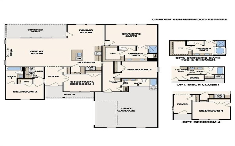
Description

Call the Camden floor plan home! Offering a sprawling, single-story layout, this plan is centered around an expansive great room with access to a large covered patio. A dining area and an impressive kitchen with a walk-in pantry and a center island are adjacent. Toward the front of the home, you’ll find three bedrooms and two full baths. The primary suite offers a serene escape from the day, boasting a walk-in closet and a private bath with dual sinks and a walk-in shower. With an inspired lineup of floor plans—boasting contemporary open-concept layouts and desirable included features—this exciting new community offers something for everyone. You’ll also love a prime location near shopping, dining and more! Est. November completion!

×

Schedule a Showing

For further questions, including partnership opportunities, please email
info@questmls.com or contact using our contact form.

Mortgage Calculator
Monthly Payment: $
This site is registered on wpml.org as a development site. Switch to a production site key to remove this banner.