Builders Clearinghouse

$392,764

504 Diamond Drive, Azle, TX 76020

Residential
Last update date 2025-12-16 00:03:08
3 Camas
2 Balneario
1,875sqft
  • Build in 2025
  • Área de lote 0.25 Acre
  • Tipo de Propiedad Residential
  • loc
    MLS # 21087649
  • Días en el mercado 60Días
  • Habitaciones 3
  • Baños completos 2
  • Pies Cuadrados 1,875 Sq Ft
Descripción

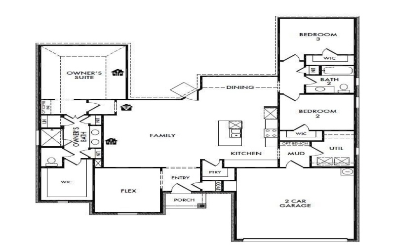
MLS# 21087649 – Built by Impression Homes – Dec 2025 completion! ~ This stunning new construction home in the desirable Stone Eagle subdivision offers modern living with traditional charm. Spanning 1,875 square feet, the layout features 3 spacious bedrooms, study and 2 full bathrooms, perfect for families or guests. The open floorplan is accentuated by decorative lighting and high-speed internet access, while the kitchen boasts a large island and pantry, ideal for culinary enthusiasts. Enjoy comfortable living with central heating and cooling, ceiling fans, and a cozy living area. Outdoor space includes a covered patio for relaxation. Located within the Azle ISD, this future home is set for completion by December 31, 2025. Don’t miss out on this exceptional residence with a 2-car garage and quality finishes throughout.

×

Programe una visita

For further questions, including partnership opportunities, please email
info@questmls.com or contact using our contact form.

Calculadora de hipoteca
Pago mensual: $
This site is registered on wpml.org as a development site. Switch to a production site key to remove this banner.